2019-03-27 14:13:44
【2018金装奖】第五届 | 家装工程类·优秀奖:王俊楠—紫东尚苑
2019年1月9日,2018第五届“金装奖”室内设计大赛颁奖盛典在昆明世博园中国馆盛大举行,昆明中策装饰(集团)优秀级设计师王俊楠的作品《紫东尚苑》荣获“家装工程类”优秀奖。


获奖档案:
奖 项:家装工程类 · 优秀奖
作 品:紫东尚苑
设计师:王俊楠 昆明中策装饰(集团)优秀级设计师
家装工程类 · 优秀奖
王俊楠
昆明中策装饰(集团) 优秀级设计师

主打项目:
家装高端别墅、样板房空间设计
获得荣誉:
2016年荣获第三届“金装奖“室内设计大赛、家装方案类银奖
2017年荣获第四届“金装奖“室内设计大赛公装工程类优秀奖、家装方案类优秀奖
成功案例:
紫东尚苑,昆明湖澜庭,海泊澜庭,盛唐城,经典双城,中天城天阔,恒大云报华府……
获奖作品
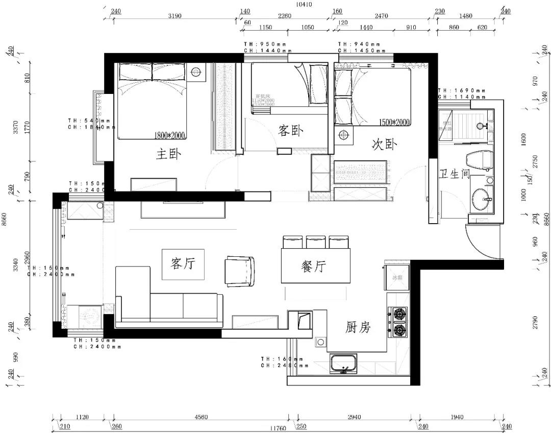
紫东尚苑
设计风格:
现代简约
项目分析:
此项目属昆明东白沙河景润路尽头,是由昆明昆明城投房地产开发有限公司开发, 项目东苑、紫东尚苑是由昆明城投集团斥巨资开发建设的居住社区。 紫东苑项目位于昆明白沙河片区,与白沙河距离1公里,是典型的水岸宜居大宅,属于高品质社区,与花之城相邻,出行方便。 紫东苑项目核心价值:①与万科白沙润园、银海白沙郡、花之城、云天化小区、发改委小区一起打造昆明高品质居住片区;②临水面1200亩的白沙河水库,打造水岸宜居住宅;③低密度、低容积率的类板式小高层④昆明城投开发,国企品质保障。
现代简约风格,简约不等于简单,它是经过深思熟虑后经过创新得出的设计和思路的延展,不是简单的“堆砌”和平淡的“摆放”。以灰色调为主色调,深浅搭配展现出现代年轻人追求时尚简约的潮流。厨房卫生间以白色调为主,给人以清爽、干净的使用环境。软装以个性挂画、实用性家具为主。整个家给人以舒适清爽的感觉。









平面布置


——云南设计界的奥斯卡——
【金装奖室内设计大赛】简称【金装奖】,是云南最具影响力和公信力的室内设计年度评选。【金装奖】由云南省室内设计行业协会指导,“金装奖”室内设计大赛组委会主办,联合全省各大院校协办,面向全省室内(建筑)设计从业者(专业组)和在校毕业生(学生组)征稿,以“传播设计正念,推动行业发展”为使命,倡导“设计改善生活”的价值观,提倡“公平公正公开公益”的评审原则,致力于搭建一个“发现设计人才、传播设计价值、推动设计发展”的学术竞技平台。
【金装奖】室内设计大赛—评审:【金装奖】室内设计大赛评审分为三个阶段:第一阶段为参赛作品的大范围收集整理,覆盖全省16州市(院校)。第二阶段为“初评”阶段,对要求不符的作品可经组委会返回机构(院校)或个人(学生)重新整理,如仍然不符合要求视为放弃比赛,不进入终审阶段。第三阶段为“终审”阶段,由评审委员会国际评委和省内评委通过网评(盲评)的形式进行打分最终加权平均依次得出评选结果。
【金装奖】室内设计大赛—奖项设置:首先分为“专业组”和“学生组”两大类,其中,“学生组”不按类别细分,设一等奖、二等奖、三等奖、优秀奖、优秀指导教师奖和优秀组织奖。
“专业组”分为四大类,分别是“公装方案类、公装工程类、家装方案类、家装工程类”,每类分别按得分高低评选出一金、二银、三铜和优秀奖,共计54个奖项。
【金装奖】室内设计大赛—公益融推:对获奖设计师和获奖作品,通过杂志、网络、微信公众平台、公益联展等方式,进行综合性展示和推广,全方位呈现给市场大众。








